3 pistas Ventana deslizante de pantalla
Descripción
Parámetros técnicos
3 pistas Ventana deslizante de pantalla
Alrededor de 3 pistas Sistema de ventana deslizante de pantalla
3- mecanismo de ventana deslizante de pantalla de pista
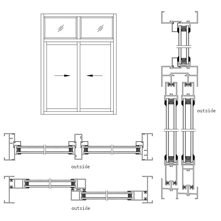
Una ventana de deslizamiento de pantalla de pista 3- es un tipo de sistema de ventana que funciona en tres pistas paralelas, lo que permite configuraciones de ventanas flexibles . Así es como funciona típicamente:
Características clave
- Tres pistas paralelas: El sistema de la ventana tiene tres pistas horizontales que guían los paneles de la ventana a medida que se deslizan .
- Configuración de múltiples paneles: Por lo general, consta de dos o tres paneles móviles que pueden pasar entre sí .
- Opciones de apertura flexibles: Permite diferentes configuraciones de apertura dependiendo de cómo se coloque los paneles .
Configuraciones comunes
Sistema de dos paneles:
- Un panel se fija en la pista media
- Segundo panel se deslizan en la pista interna o externa
- Permite que se abra la mitad de la ventana
Sistema de tres paneles:
- Los tres paneles son móviles
- Se puede configurar para abrir 1/3, 2/3 o el ancho de la ventana completa
- Los paneles pueden apilarse en un lado o distribuirse
Ventajas
- Proporciona más opciones de ventilación que los sistemas de seguimiento único o doble
- Permite una mayor flexibilidad en los tamaños de apertura de la ventana
- Mantiene la seguridad ya que los paneles se pueden bloquear en varias posiciones
- Permite un mejor control del flujo de aire y la entrada de luz
- Estos sistemas se usan comúnmente en edificios residenciales y comerciales donde se desean ventilación ajustable y configuraciones de ventanas flexibles .
Caso del proyecto Guangya: apartamento de Carlingford (Sydney)
Producto: Ventana de pared y barandilla de vidrio
Área: 20, 000 m²

Especificación de producto
| Marca | Guangya | Tratamiento superficial | Recubrimiento anodizado de fluorocarbono en polvo, electroforesis, etc. ... |
| Tipo | Sistema de ventana de aluminio: sistema de ventana deslizante | Color | Color Personalizado (plata, bronce, champán, titanio, níquel, amarillo dorado ...) |
| Número de modelo | Ventana deslizante de pantalla de la serie GR70 | Longitud | Personalizado |
| Lugar de origen | Foshan Guangdong China | Espesor de aluminio | Grosor de la pared del perfil principal 1.5 mm |
| Material | Aleación de aluminio / vidrio | Vaso | Vidrio único y vidrio aislante |
| Temperamento | T3 - T8 | Certificado | ISO9001 CQC Saiglobal AS2047 |
| Solicitud | Adecuado para residencias, edificios comerciales y edificios industriales | Personalización | Logotipo / embalaje / gráfico |
| Forma | Como solicitud | Detalles del empaque | El algodón de pera para que se entrelaze cada uno en pequeños paquetes . en la bolsa de plástico de cristal . barra de madera para fijar en los paquetes maestros . Cargar en una pista de Stee . Carga en el contenedor por la remolcada . |
| Aleación o no | Aleación | El tiempo de entrega | 15 - 30 días |
| Servicio de procesamiento | Doblar, doblar, soldar, golpear, cortar |
Característica y aplicación
La ventana deslizante de la serie Guangya GR70 tiene un grosor de pared del perfil principal de 1 . 5 mm, ofrece la opción de vidrio único y vidrio aislante, tiene un rendimiento de iluminación excepcional, es flexible y fácil de operar, seguro y estable y duradero . con los mosquitos puede evitar los mosquitos, los volamientos y otros insectos desde el vuelo y la altura de la sala.
Las pantallas de ventana retráctil pueden tener muchas características, que incluyen:
Tipos de malla: Las pantallas pueden venir en diferentes tipos de malla que proporcionan protección de insectos, privacidad y control de calor solar .
Opciones de color: Las pantallas pueden venir en una variedad de colores, incluidos los acabados de grano de madera .
Sombreado solar: Las pantallas pueden proporcionar sombreado solar mientras mantienen vistas .
Las pantallas de la ventana están diseñadas para evitar que los insectos ingresen a una casa sin obstruir la vista o el flujo de aire . No están destinados a evitar que los niños se caigan de las ventanas, detengan los intrusos o se defiendan contra animales más grandes {}}}
Su aplicación es muy extensa, principalmente adecuada para residencias, edificios comerciales y edificios industriales .

Dibujo de estructura
Ventana deslizante de resistencia al calor de la pantalla Guangya GR70

Procesamiento de fabricación

Embalaje y envío

Preguntas frecuentes
P: ¿Es usted una empresa comercial o fabricante?
R: Somos fabricantes profesionales especializados en pared de cortina de aluminio, ventana y pared . e intercambiamos nuestros productos con nuestros clientes directamente .
P: ¿Puedes hacer OEM y ODM?
R: Sí, OEM y ODM son aceptables . Las máquinas se pueden personalizar según sea necesario, la cantidad básica que aconsejaremos después de discutir .
P: ¿Podemos usar nuestro propio logotipo?
R: Sí, podemos imprimir su logotipo privado de acuerdo con su solicitud .
P: ¿Cuántos empaques tienes?
R: Tenemos un caso de madera de exportación estándar actualmente .
P: ¿Puedes hacer nuestro propio embalaje?
R: Sí, solo proporciona el diseño del paquete y produciremos lo que desea . También tenemos el diseñador profesional puede ayudarlo a hacer el diseño de empaque .
P: ¿Cuándo puedo obtener el precio?
R: Por lo general, citamos dentro de las 24 horas posteriores a que recibamos su consulta .
P: ¿Qué formulario de pago puede aceptar?
A: T/T, Western Union, PayPal, etc. . Aceptamos cualquier término de pago conveniente y rápido .
P: ¿Proporciona muestra? ¿Es gratis?
R: Proporcionaremos la muestra con Freight Collect, y la muestra no es gratuita .
P: ¿Cuánto tiempo dura su tiempo de entrega?
A: Acerca de 15 - 30 días .
P: ¿Cuál es su plazo de pago?
R: 30% de pago inicial antes de producir y el 70% de pago de saldo antes de enviar . Aceptamos cualquier término de pago conveniente y rápido, como T/T, Western Union, PayPal, etc. .
Etiqueta: 3 pistas Ventana deslizante de pantalla, China 3 Pistas Fabricantes de ventana deslizante de pantalla de pistas, fábrica, ventana de aluminio tradicional, recubrimiento de ventana de aluminio, Ventana resistente a los rayos UV, ventana de aluminio pintada, modernización, ventana de aluminio industrial
Artículo anterior
Ventanas elevables verticalesSiguiente artículo
Pantalla de ventana de doble estallarEnvíeconsulta








